2026年2月
2026年2月15日
この物件のおすすめポイント
【南馬込5丁目戸建】
都営浅草線「西馬込」駅 徒歩3分
~大人の隠れ家ガレージハウス~
■1989年2月築、鉄筋コンクリート造陸屋根3階建!!
■土地面積約110㎡、建物面積約190㎡!!
■土地面積約110㎡、建物面積約190㎡!!
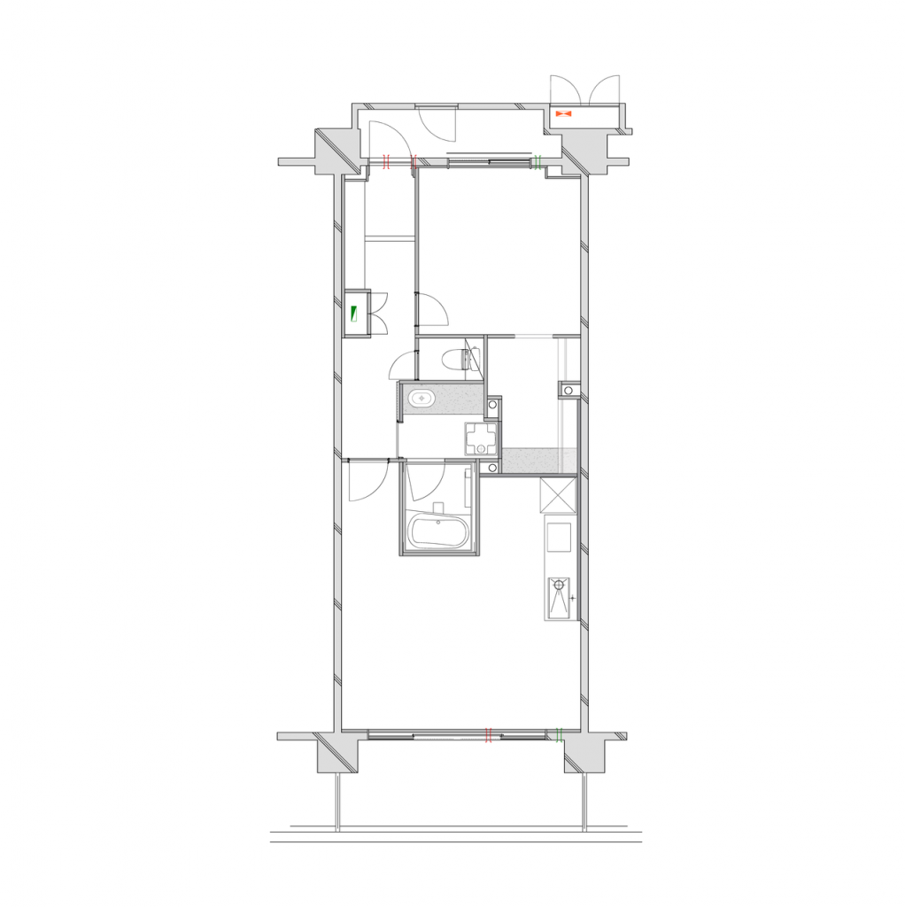
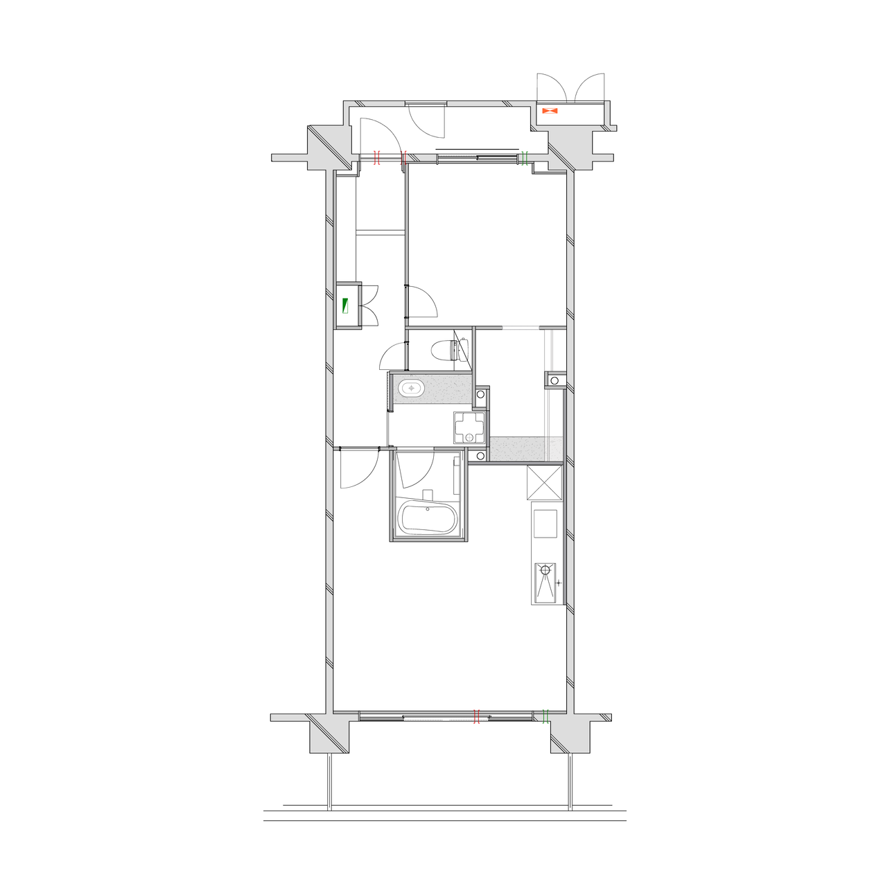
物件概要
| 物件名 |
南馬込5丁目戸建 |
| 所在地 | 大田区南馬込5丁目 |
| アクセス | 都営浅草線「西馬込」駅 徒歩3分 |
| 価格 | 16,999万円 |
| 住戸数 | – |
| 敷地面積 | 119.74㎡(36.22坪) |
| 延床面積 | 193.8㎡(58.62坪) |
| 土地権利 | 所有権 |
| 建物構造 | 鉄筋コンクリート造陸屋根3階建 |
| 築年 | 1989年2月 |
| 用途地域 | 第1種居住専用地域 |
| 建蔽率 | 60% |
| 容積率 | 200% |
| 間取り | 3SLDK |
| 駐車場 | あり(3台、ガレージ2台、平置き1台) |
| 現況 | リノベーション工事中(令和8年3月下旬予定) |
| 引渡時期 | 相談 |
| 取引形態 | 仲介 |
| 設備 | 各社電力/公営水道/都市ガス/公共下水 |
| 備考 | 既存住宅瑕疵保険加入予定(建物5年保証、限度額1,000万円迄) |
| 物件番号 | – |
| 物件更新日 | 2026/3/2 |
2026年2月15日
この物件のおすすめポイント
【三田シティハウス】
東京メトロ南北線・都営三田線「白金高輪」駅 徒歩8分
東京メトロ南北線・都営大江戸線「麻布十番」駅 徒歩12分
都営三田線・都営浅草線「三田」駅 徒歩11分
JR山手線・JR京浜東北線「田町」駅 徒歩12分
■1998年築、SRC造地下1階付地上14階建!!
■専有面積55㎡超え1LDK+WIC!!
■2駅以上複数路線利用可能!!
物件概要
| 物件名 |
三田シティハウス |
| 所在地 | 港区三田5丁目 |
| アクセス | 東京メトロ南北線・都営三田線「白金高輪」駅 徒歩8分 |
| 価格 | 11,900万円 |
| 間取り | 1LDK+WIC |
| 面積(平米) | 専有面積:55.86㎡ バルコニー面積:9.8㎡ |
| 部屋向き | 南西 |
| 土地権利 | 所有権 |
| 建物構造 | SRC造 地下1階地上14階建 |
| 築年 | 1998年3月 |
| 総戸数 | 180 |
| 管理費 | 8,044円/月 |
| 修繕積立金 | 7,856円/月 |
| 管理形態 | 常駐 |
| 駐車場 | 有(月額31,000~39,000円) |
| 現況 | 空室 |
| 引渡時期 | 即時 |
| 取引形態 | 仲介 |
| 設備 | 都市ガス/公共下水/ガス給湯/エレベーター |
| 備考 | ※ペット:不可(小鳥・魚類のみ)
※町内会費:200円/月 ※ポーチ面積:4.12㎡
|
| 物件番号 | – |
| 物件更新日 | 2026/3/2 |
2026年2月15日
この物件のおすすめポイント
【南馬込5丁目売地】
都営浅草線「西馬込」駅 徒歩5分
~駅徒歩5分圏内!通勤・通学便利な立地~
■6.52m公道に面し、土地面積約430㎡!!
■建築条件はございません!!
■地下車庫2台分あり、ハイルーフ車も入ります!!
物件概要
| 物件名 |
南馬込5丁目売地 |
| 所在地 | 大田区南馬込5丁目 |
| アクセス | 都営浅草線「西馬込」駅 徒歩5分 |
| 価格 | 33,800万円 坪単価@255.42万円 |
| 住戸数 | – |
| 敷地面積 | 実測437.47㎡(132.33坪) |
| 延床面積 | – |
| 土地権利 | 所有権 |
| 建物構造 | – |
| 築年 | – |
| 用途地域 | 市街地区域/第1種低層住居専用地域 |
| 建蔽率 | 50% |
| 容積率 | 100% |
| 防火指定 | – |
| 駐車場 | |
| 現況 | 更地 |
| 引渡時期 | 即時/更地渡し |
| 取引形態 | 仲介 |
| 設備 | 都市ガス/東京電気/公営水道/公共下水 |
| 備考 | 接道状況:西6.52m公道
電動シャッター交換致します。 |
| 物件番号 | – |
| 物件更新日 | 2026/3/2 |
2026年2月15日
この物件のおすすめポイント
【鵜の木2丁目売地】
東急多摩川線「鵜の木」駅 徒歩2分
~駅徒歩2分圏内!通勤・通学便利な立地~
■土地面積約100㎡!!
■鵜の木商店街沿い、少し足を運ぶと多摩川があり自然環境も!!
物件概要
| 物件名 |
鵜の木2丁目売地 |
| 所在地 | 大田区鵜の木2丁目 |
| アクセス | 東急多摩川線「鵜の木」駅 徒歩2分 |
| 価格 | 14,800万円 坪単価@487.07万円 |
| 住戸数 | – |
| 敷地面積 | 実測100.45㎡(30.38坪) 登記:96.54㎡(29.20坪) |
| 延床面積 | – |
| 土地権利 | 所有権 |
| 建物構造 | – |
| 築年 | – |
| 用途地域 | 商業地域 |
| 建蔽率 | 80% |
| 容積率 | 300% |
| 防火指定 | – |
| 駐車場 | |
| 現況 | 更地 |
| 引渡時期 | 即時/更地渡し |
| 取引形態 | 仲介 |
| 設備 | 電気/上水道/下水道 |
| 備考 | 接道状況:南東7.9m公道 接面11.6m |
| 物件番号 | – |
| 物件更新日 | 2026/3/2 |
2026年2月15日
この物件のおすすめポイント
【イースタンホームズ六本木】
東京メトロ日比谷線「六本木」駅 徒歩7分
都営大江戸線「六本木」駅 徒歩7分
都営大江戸線「麻布十番」駅 徒歩10分
■昭和55年築、RC造地下1階付地上4階建!!
■専有面積40㎡超え1LDK!!
■2駅複数路線利用可能!!
物件概要
| 物件名 |
イースタンホームズ六本木 |
| 所在地 | 港区元麻布3丁目 |
| アクセス | 東京メトロ日比谷線「六本木」駅 徒歩7分 |
| 価格 | 15,200万円 |
| 間取り | 1LDK |
| 面積(平米) | 専有面積:41.86㎡ バルコニー面積:3.02㎡(北西) |
| 部屋向き | 北西 |
| 土地権利 | 所有権 |
| 建物構造 | RC造 地下1階地上4階建 3階部分 |
| 築年 | 1980年11月 |
| 総戸数 | 17 |
| 管理費 | 19,700円/月 |
| 修繕積立金 | 13,020円/月 |
| 管理形態 | 日勤 |
| 駐車場 | 空無(月額50,000円) |
| 現況 | 空室 |
| 引渡時期 | 相談 |
| 取引形態 | 仲介 |
| 設備 | – |
| 備考 | ※ペット:不可(小鳥・魚類のみ)
|
| 物件番号 | – |
| 物件更新日 | 2026/3/2 |










