2026年3月
2026年3月27日
この物件のおすすめポイント
【南麻布1丁目売地】
東京メトロ南北線・都営地下鉄大江戸線「麻布十番」駅 徒歩8分
東京メトロ南北線・都営地下鉄三田線「白金高輪」駅 徒歩14分
東京メトロ日比谷線「広尾」駅 徒歩16分
~建築条件なし、引渡し即時~
■南西側7.27m公道・北西側4.0m公道に面し、土地面積約120㎡!!
■建築条件はございません!!
物件概要
| 物件名 |
南麻布1丁目売地 |
| 所在地 | 港区南麻布1丁目 |
| アクセス | 東京メトロ南北線・都営地下鉄大江戸線「麻布十番」駅 徒歩8分 |
| 価格 | 54,980万円 |
| 住戸数 | – |
| 敷地面積 | 実測102.18㎡(30.90坪) |
| 延床面積 | – |
| 土地権利 | 所有権 |
| 建物構造 | – |
| 築年 | – |
| 用途地域 | 準工業地域 |
| 建蔽率 | – |
| 容積率 | – |
| 防火指定 | 防火地域 |
| 駐車場 | – |
| 現況 | 更地 |
| 引渡時期 | 即時/更地渡し |
| 取引形態 | 仲介 |
| 設備 | 都市ガス/公営水道/公共下水 |
| 備考 | 高度地区(35m)
特別工業地区 確定測量済み 私道負担なし |
| 物件番号 | – |
| 物件更新日 | 2026/4/20 |
2026年3月27日
この物件のおすすめポイント
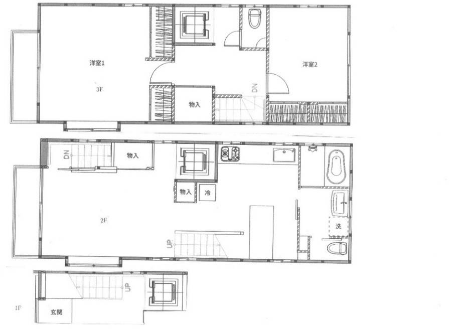
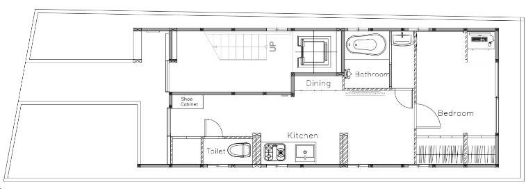
【赤坂4丁目戸建】
東京メトロ千代田線「赤坂」駅 徒歩6分
東京メトロ銀座線「赤坂見附」駅 徒歩8分
~駅近、閑静な住宅街で住みやすい立地~
■2006年9月築、木造合金メッキ鋼板葺3階建!!
■土地面積約70㎡、建物面積約110㎡!!
物件概要
| 物件名 |
赤坂4丁目戸建 |
| 所在地 | 港区赤坂4丁目 |
| アクセス | 東京メトロ千代田線「赤坂」駅 徒歩6分 |
| 価格 | 29,000万円 |
| 住戸数 | – |
| 敷地面積 | 71.51㎡(21.63坪) |
| 延床面積 | 111.74㎡(33.80坪) |
| 土地権利 | 所有権 |
| 建物構造 | 木造合金メッキ鋼板葺3階建 |
| 築年 | 2006年9月 |
| 用途地域 | 第1種住居専用地域 |
| 建蔽率 | 60% |
| 容積率 | 300% |
| 間取り | 2LDK+1DK |
| 駐車場 | あり |
| 現況 | – |
| 引渡時期 | 相談 |
| 取引形態 | 仲介 |
| 設備 | – |
| 備考 | 2021年リフォーム済
敷地面積:71.51平米(登記) (建築計画概要書)117.06㎡、(敷地)70.77㎡、自動車車庫等の部分5.32㎡、延床面積:111.74㎡ |
| 物件番号 | – |
| 物件更新日 | 2026/4/20 |





